Das Premium Gartenhaus DOMEO 6 vom Hersteller Lasita Maja ist mehr als Premium! Mit den Maßen 500 x 500 cm und dem superschicken Eckbau ist der absolute Hingucker in Ihrem Garten! Es bietet eine Menge Platz und ist durch die eckige Form nicht direkt einsehbar von allen Seiten, so dass Sie hier ungestört genießen und auch gerade hervorragend den Platz in Ihrem Garten nutzen können. Die 44 mm Wandbohlen mit Doppelnut und -feder wirken einfach gemütlich dank dem Holz aus ausgesuchter nordischer Fichte. Aufgrund der Seitenwandhöhe von 239 cm kommen Sie sich in diesem schicken Kleinod quasi wie in einem Wohn- bzw. Gästehaus vor. Farblich können Sie DOMEO 6 endbehandelt bestellen: Es stehen die Farben Carbon Grau, Licht Grau, Tauben Blau und Eiche zur Auswahl. Noch dazu sind alle Modelle wahlweise mit Aluminium-Rahmen an Fenster & Türen in den Farben Anthrazit oder Arctic Weiss erhältlich 44 mm Wandbohlen mit Doppelnut und -feder
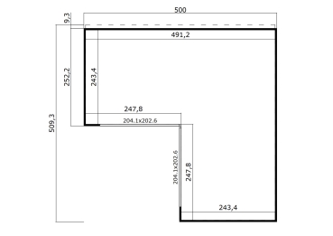
- Wandaußenmaß: 500 x 500 cm
- Firsthöhe: 234 cm
- Seitenwandhöhe: 234 cm
- Grundfläche: 17,90 m²
- Rauminhalt: 52,95 m³
- Bauweise: Steck-/Schraub-System
- Moderne Eckverbindung (wasserdichte Ecken)
- Moderne Tür und Fenster Optik
- ausgesuchte nordische Fichte
- 18 mm Dach- und Fußbodenbretter Nut und Feder
- inkl. imprägnierte Unterkonstruktion
- Dach mit leichtem Gefälle
- Dachfläche: 19,10 m²
- Dachstärke: 18 mm
- Dachneigung: 1,3°
- Ringsum 10 cm Dachüberstand
- Schiebetüren mit Glas und mit Aluminium-Rahmen
- 2 x Schiebetür 204 x 202,6 cm bestehend aus 2 Elementen
- 4 mm ESG-Glas (Einscheibensicherheitsglas)
- unbehandelter Bausatz
- Optional farblich behandelt
- Montageset und ausführliche Aufbauanleitung
- Dacheindeckung ist nicht im Lieferumfang enthalten
- Dekoration gehört nicht zum Lieferumfang, Beispielfotos
- Sollten Sie eine selbstklebende Aluminium Dachfolie wünschen, benötigen Sie für das Gartenhaus Domeo 5 Rollen à 5 m².
Das Lasita Maja Gartenhaus Farbsystem - In den Farben Carbon Grau, Licht Grau, Tauben Blau und Eiche
Unser umweltfreundliches und auf Wasser basierendes Holzschutzmittel eignet sich ideal zum professionellen Einsatz im Außenbereich. Durch eine einzigartige Kombination von verschiedenen wasserlöslichen, ölmodifizierten Bindemitteln wird die Oberfläche ideal verschlossen, bleibt atmungsaktiv und dauerhaft wasserabweisend. Die Farbe dringt tief in das Holz ein und sorgt mit Ihrem matten Charakter für eine wunderschöne Akzentuierung der Holzstruktur.
Unsere Holzbehandlung bietet perfekten Schutz vor schädlichen Witterungseinflüssen, UV-Strahlung, Insektenbefall, Schimmel, Pilzen und Bläue.
- 4 - seitig industriell farbig vorbehandelte Wandbohlen
- Vier Farben zur Auswahl
- Türen/Fenster innen und außen cremeweiß
- Abdeckleisten und Dachpfetten 4 - seitig cremeweiß geschützt
- Dachbretter 3 - seitig behandelt
- Behandlung umweltfreundlich und geruchsarm
- idealer Schutz vor Witterungseinflüssen, Pilzen, Insektenbefall, Schimmel, Bläue
- Ersatzfarbe zur Reparatur kleiner Schäden im Lieferumfang enthalten
- Empfohlenes Pflegeintervall 5 Jahre
- Farbe für z. B. Nachanstrich, separat erhältlich