NEU ! Jetzt mit Isolierverglasung ! NEU ! Inklusive Dachpappe !
Das moderne Gartenhaus mit Zwischenwand bietet vielfältige Nutzungsmöglichkeiten !
- Wandstärke : 44 mm Doppelnut und -feder
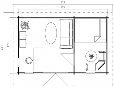
- Wandaussenmasse : 569 x 359 cm
- Bohlenmasse : 589 x 379 cm
- Innenmasse ca. 560 x 350 cm
- Dachüberstand : 80 cm
- Seitenwandhöhe : ca. 234 cm
- Firsthöhe : ca. 257 cm
- Nutzfläche : ca. 19,6 cm
- umbauter Raum : ca. 44,1 cbm
- Dachfläche : ca. 28,4 qm
- Doppeltür 158,8 x 195,7 cm / Einzeltür 83,5 x 195,7 cm / Fenster 3 St. 56 x 178,8 cm
Paketmass ( L x B x H ) : 630x115x85 cm
Gewicht : 1.786 kg
Beschreibung :
- 44 mm Wandbohlen mit Doppelnut
- spezielle Eckverbindung mit Chaletschnitt für wind- und regendichte Wandecken
- 45 x 70 mm kesseldruckimprägnierte Lagerhölzer
- 18 mm Dach- und Fussbodenbretter mit Nut + Feder
- Türen mit Leimholz-Rahmen und Isolierverglasung
- niedrige Türschwelle mit Edelstahlprofil
- inkl. Zylinderschloß und Drückergarnitur
- aufgesetzte Tür- und Fenstersprossen
- Fenster mit Dreh-Kipp-Beschlag und Echtverglasung
- inkl. Sturmleisten zur Windsicherung
- Stirnbretter mit komplettem Leistensatz für Dach und Boden
- unbehandelter Bausatz
- inklusive Dachpappe
- ausführliche Aufbauanleitung und Montageset