Ein qualitativ hochwertiges Gartenhaus im modernen Design,
mit Fußboden und Isolierverglasung !
Inklusive Dachpappe !
- Wandstärke : 44 mm Doppelnut und -feder
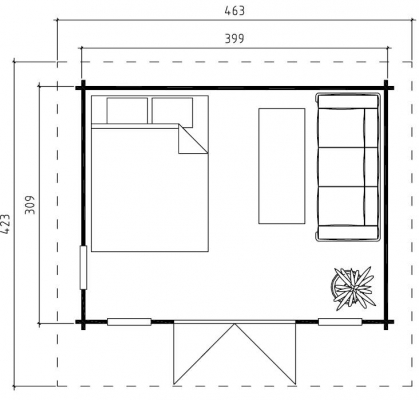
- Wandaussenmasse : 399 x 309 cm
- Bohlenmasse : 419 x 329 cm
- Innenmasse ca. 390 x 300 cm
- Dachüberstand : 80 cm
- Seitenwandhöhe : ca. 234 cm
- Firsthöhe : ca. 257 cm
- Nutzfläche : ca. 11,7 cm
- umbauter Raum : ca. 28,7 cbm
- Dachfläche : ca. 19,3 qm
- Doppeltür 158,8 x 195,7 cm
- Fenster 3 St. 56 x 178,8 cm
Paketmass ( L x B x H ) : 630x115x68 cm
Gewicht : 1.429 kg
Beschreibung :
- 44 mm Wandbohlen mit Doppelnut
- spezielle Eckverbindung mit Chaletschnitt für wind- und regendichte Wandecken
- 45 x 70 mm kesseldruckimprägnierte Lagerhölzer
- 18 mm Dach- und Fussbodenbretter mit Nut + Feder
- Türen mit Leimholz-Rahmen und Isolierverglasung
- niedrige Türschwelle mit Edelstahlprofil
- inkl. Zylinderschloß und Drückergarnitur
- aufgesetzte Tür- und Fenstersprossen
- Fenster mit Dreh-Kipp-Beschlag und Echtverglasung
- inkl. Sturmleisten zur Windsicherung
- Stirnbretter mit komplettem Leistensatz für Dach und Boden
- unbehandelter Bausatz
- Lieferung inklusive Dachpappe
- ausführliche Aufbauanleitung und Montageset