Beschreibung:
- 28 mm Wandbohlen mit Nut und -feder
- Chalet-Eckverbindung für winddichte Wandecken
- Blockbohlen aus ausgesuchter nordischer Fichte
- inkl. 15mm Dach - und Fußodenbretter mit Nut und Feder
- Türen und Fenster mit Echtverglasung
- aufgesetzte Tür- und Fenstersprossen die wahlweise angebracht werden können
- 2 Fenster mit Dreh-/Kippbeschlag zum Öffnen
- inkl. Drückergarnitur und Zylinderschloss
- inkl. Sturmleisten zur Windsicherung
- ohne Dacheindeckung
- unbehandelter Bausatz
- Montageset und ausführliche Aufbauanleitung
Türen:
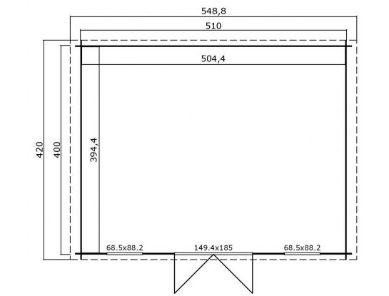
Doppelflügeltür Durchgangsmaß: 141,8 x 179,3 cm
Echtverglasung
Fenster:
2 x Einzelfenster Durchgangsmaß 58,5 x 78,2 cm
Echtverglasung
| Wandstärke (mm) |
28 mm |
| Bohlenmaß (BxT) |
530 x 420 cm |
| |
|
| Wandaußenmaß (BxT) |
510 x 400 cm |
| Innenmaß (BxT) |
504,4 x 394,4 cm |
| |
|
| Seitenwandhöhe |
194 cm |
| Firsthöhe |
245 cm |
| |
|
| Grundfläche (m²) |
19,89 m² |
| Rauminhalt (m³) |
43,66 m³ |
| |
|
| Bauweise |
Blockbohlen |
| Farbbehandlung |
natur/unbehandelt |
| |
|
| Dachform |
Satteldach |
| Dachfläche |
23,52 m² |
| |
|
| Dachstärke |
15 mm |
| Dachneigung |
15° |
| |
|
| Vordach |
10 cm |
| Dachüberstand hinten |
10 cm |
| |
|
| Dachüberstand seitlich |
19 cm |