Beschreibung:
- 28 mm Blockbohlen aus ausgesuchter nord. Fichte
- Chalet-Eckverbindung für winddichte Wandecken
- 15 mm massive Dachbretter Nut und Feder
- flache Schwelle = niedriger Einstieg
- Echtverglasung
- inkl. Drückergarnitur und Kastenschloss
- Sturmleisten zur Windsicherung
- Strin- und Traufenbretter
- inklusive Dachpappe
- unbehandelter Bausatz
- Montageset und ausführliche Aufbauanleitung
- Fussboden in 18mm
Türen:
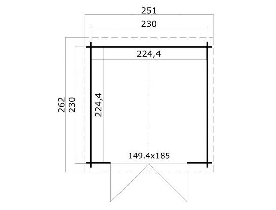
Doppeltür 149,4 x 185 cm, mit 4 mm Echtverglasung
Fenster:
als Zubehör auf Anfrage
| Wandstärke (mm) |
28 mm |
| Bohlenmaß (BxT) |
250 x 250 cm |
| |
|
| Wandaußenmaß (BxT) |
230 x 230 cm |
| Innenmaß (BxT) |
224,4 x 224,4 cm |
| |
|
| Seitenwandhöhe |
182,4 cm |
| Firsthöhe |
222,3 cm |
| |
|
| Grundfläche (m²) |
5,29 m² |
| Rauminhalt (m³) |
10,20 m³ |
| |
|
| Bauweise |
Blockbohlen |
| Farbbehandlung |
natur/unbehandelt |
| |
|
| Dachform |
Satteldach |
| Dachfläche |
7,0 m² |
| |
|
| Dachstärke |
15 mm |
| Dachneigung |
19° |
| |
|
| Vordach |
16 cm |
| Dachüberstand hinten |
cm |
| |
|
| Dachüberstand seitlich |
cm |
| Paketmaß_1 (LxBxH) / Paketgewicht |
266x115x42 cm / 354 kg |