- Aus naturbelassenem Fichtenholz
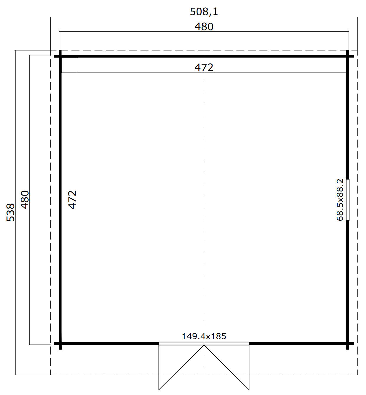
- Sockelmaß (BxT): 480 x 480 cm
- Satteldach aus Massivholz
- Mit Fenster und Doppelflügeltür mit Lichtausschnitten
- 40 mm Wandstärke
Strahlende Sonne, ein laues Lüftchen, und dann ganz nah bei der Natur: Ein Haus im Grünen ist ein Traum! Das Gartenhaus Erna 2 lädt ein zum Wohlfühlen und Entspannen. Das Blockbohlenhaus aus naturbelassenem Fichtenholz bietet mit einer Grundfläche von 22,3m² reichlich Platz, um sich gemütlich einzurichten. Die hübschen Kassettenfenster in der Doppeltür und ein weiteres Kassettenfenster an der Seite sorgen für viel Licht im Inneren des niedlichen Gartenhauses und einen ungehinderten Blick ins Grüne.
Details
Produktdetails
- Oberflächenbehandlung: naturbelassen
- Konstruktion: Blockbohlensystem
- Farbe: natur
Material
- Material: Holz
- Holzart: Fichte
Ausstattung
- Anzahl Fenster: 1 Stk.
- Tür: Doppelflügeltür
- Türverglasung: Echtglas
- Türschloss: Zylinderschloss
- Türschwelle: Holz
- Fensterart: Dreh-/Kippfenster
- Fensterverglasung: Echtglas
- Fußboden (Lieferumfang): inklusive
Maßangaben
- Sockelmaß Breite: 480 cm
- Sockelmaß Tiefe: 480 cm
- Gesamtaußenmaß Breite: 508 cm
- Gesamtaußenmaß Tiefe: 538 cm
- Grundfläche: 22,3 m²
- Firsthöhe: 245 cm
- Seitenwandhöhe: 193 cm
- Wandstärke: 40 mm
- Türmaß Breite: 149 cm
- Türmaß Höhe: 185 cm
- Fenstermaß Breite: 68 cm
- Fenstermaß Höhe: 88 cm
Dachmerkmale
- Dachform: Satteldach
- Dachart: Massivholzdach
- Dacheindeckung: ohne
- Dachschindelbedarf: 11 Paket(e)
- Bedarf selbstklebende Dachbahn: 3 Rolle(n)