Beschreibung:
- 28 mm Wandbohlen mit Nut und Feder
- Chalet-Eckverbindung für winddichte Wandecken
- ausgesuchte nordische Fichte
- 15 mm Dachbretter Nut und Feder
- Türen mit Leimholz-Rahmen und Echtverglasung
- niedrige Türschwelle
- modernes Türdesign mit Echtverglasung
- Fenster mit Dreh-/Kippbeschlag und Echtverglasung
- inkl. Zylinderschloss und Drückergarnitur
- Stirnbretter mit komplettem Leistensatz
- unbehandelter Bausatz
- Montageset und ausführliche Aufbauanleitung
- Lieferung mimit Fussboden
Türen:
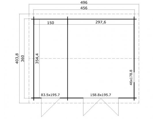
Doppeltür 158,8 x 195,7 cm
Einzeltür 83,5 x 195,7 cm
Fenster:
Panorama-Fenster 46 x 178,8 cm Dreh-/Kipp
| Wandstärke (mm) |
28 mm |
| Bohlenmaß (BxT) |
476 x 380 cm |
| |
|
| Wandaußenmaß (BxT) |
456 x 350 cm |
| Innenmaß (BxT) |
297,4 x 354,4 + 150 x 354,4 cm |
| |
|
| Seitenwandhöhe |
211 cm |
| Firsthöhe |
262 cm |
| |
|
| Grundfläche (m²) |
15,85 m² |
| Rauminhalt (m³) |
38,70 m³ |
| |
|
| Bauweise |
Blockbohlen |
| Farbbehandlung |
natur/unbehandelt |
| |
|
| Dachform |
Satteldach |
| Dachfläche |
20,85 m² |
| |
|
| Dachstärke |
15 mm |
| Dachneigung |
16° |
| |
|
| Vordach |
20 cm |
| Dachüberstand hinten |
25 cm |
| |
|
| Dachüberstand seitlich |
cm |
| Paketmaß_1 (LxBxH) / Paketgewicht |
630x118x48 cm/ 943 kg |