Durch das attraktive Design und die transparente Dacheindeckung der Leimholz Design-Carports
entsteht eine leichte Optik. Die Konstruktion der Design-Carports besteht aus Leimholz.
Leimholz ist ein hochwertiger Verbund mehrerer Holzteile. Diese werden getrocknet und wetterfest miteinander verleimt.
So entsteht ein tragfähiger Balken der gegenüber dem natürlich gewachsenen Holz verwindungsärmer ist und weniger zur Rissbildung neigt. Leimholz muss gegen Pilz- und Insektenbefall behandelt werden.
Für farbige Anstriche ist Leimholz der ideale Untergrund. Hierfür sollte eine offenporige Lasur verwendet werden.
Die Standpfosten der Design-Leimholz-Carports von Skanholz werden mit einem
Querschnitt von ca. 12 x 12cm geliefert. Pfostenanker zum Einbetonieren gehören zum Lieferumfang.
Das Dach der Design-Leimholz-Carports von Skanholz wird mit transparenten Doppelstegplatten aus Polycarbonat eingedeckt.
Die Platten sind speziell auf der Oberseite gegen UV-Strahlen behandelt und gewähren somit zusätzlichen Schutz,
nicht nur vor Wind und Regen.
Hinweis
Die optionale farbige Vorbehandlung ist lichtecht und dient als Grundierung.
Ein bauseitiger Endanstrich mit einer Dickschichtlasur auf Acrylbasis muss erfolgen.
- Details zum Artikel Design Leimholz Flachdach-Carport
- Bezeichnung
- Modell Einzelcarport
- Hersteller Skanholz
- Allgemeine Daten
- Dachform Flachdach
- Material Leimholz
- Bemaßung
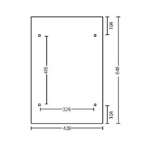
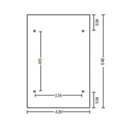
- Breite 428cm
- Tiefe 648cm
- Einfahrtsbreite 326cm
- Einfahrtshöhe 220cm
- Bauhöhe vorne 238cm
- Pfosten Anzahl 4
- Pfostenstärke ca. 12 x 12 cm
- Material Leimholz
- Pfostenabstand 416cm
- Dach
- Material 10mm transparente Doppelstegplatten aus Polycarbonat
- Schneelast max. 125 kg/qm
- Im Lieferumfang enthalten
- Aufbauanleitung
- Montagematerial inklusive H-Pfostenanker (ohne Beton)
- gerade Kopfbänder