Der attraktive Walmdach-Carport von Skanholz wertet Ihr Grundstück optisch auf.
Der Walmdach-Carport bietet Wetterschutz rundum.
Bei der Blende in Schieferoptik des Artikels Walmdach-Carport besteht die Wahl zwischen den
Farben schwarz, rot oder braun.
Zusätzlich können die Skanholz Walmdach-Carports aus druckimprägniertem
Nadelholz mit etwas teurer farbig behandelter Oberfläche bestellt werden.
Hinweis
Die optionale farbige Vorbehandlung ist lichtecht und dient als Grundierung.
Ein bauseitiger Endanstrich mit einer Dickschichtlasur auf Acrylbasis muss erfolgen.
- Details zum Artikel Skanholz Walmdach-Carport
- Bezeichnung
- Modell Einzelcarport
- Hersteller Skanholz
- Allgemeine Daten
- Dachform Walmdach
- Material Nadelholz kdi
- Bemaßung
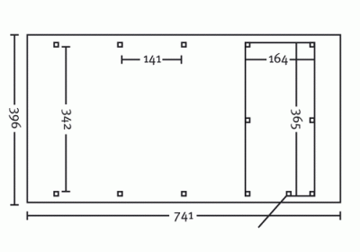
- Breite 396cm
- Tiefe 893cm
- Einfahrtsbreite 342cm
- Einfahrtshöhe vorne 209cm
- Einfahrtshöhe hinten 187cm
- Bauhöhe vorne 244cm
- Bauhöhe hinten 222cm
- Pfosten Anzahl 12
- Pfostenstärke ca. 11,5 x 11,5 cm
- Material Nadelholz kdi
- Pfostenlänge 220cm
- Pfostenabstand 141 cm
- Dach
- Material Aluminiumplatten mit Trapezprofil blank
- Umlaufende Blende Zementfaserplatten in Schieferoptik
- Schneelast max. 125 kg/qm
- Ausstattung
- Im Lieferumfang enthalten
- Aufbauanleitung
- Carport-Statik
- Montagematerial inklusive H-Pfostenanker (ohne Beton)
- Regenrinne mit Ablaufrohr