Das Karibu Carport Classic Doppel 1 bietet locker Platz für 2 PKW und
sorgt für sicheren Schutz vor Wind und Wetter.
Sie haben die Wahl zwischen Stahldach oder PVC Dach.
Einfahrtsbögen optional erhältlich.
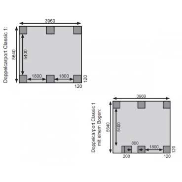
Maße (B x T): 564 x 396 cm Pfosten: 11,5 x 11,5 cm
|
Grundfläche (Breite x Tiefe)
|
564 x 396 cm
|
|
Innenmaß
|
540 x 372 cm
|
|
Dachstand
|
598 x 480 cm
|
|
Durchfahrtshöhe
|
206 cm
|
|
Firsthöhe
|
237 cm
|
|
Umbauter Raum
|
67,4 m³
|
|
Dachfläche
|
28,3 m²
|
|
Dachneigung
|
1°
|
|
Dachüberstand vorne
|
80 cm
|
|
Dachüberstand Seite
|
17 cm
|
|
Dachüberstand hinten
|
5 cm
|
|
Zulässige Schneelast
|
1,25 kN/m² (Stahldachplatten)
0,75 kN/m² (PVC-Dachplatten)
|
|
Ausführung
|
Nordische Fichte
Kesseldruckimprägniert
|
|
Dach
|
0,8 mm starke PVC-Platten mit Trapezprofil, grau
0,5 mm starke Stahlplatten mit Trapezprofil, oben rot, unten grau
|
|
Blende
|
Glattkantbretter aus Massivholz
19 cm hoch
|
|
Pfosten
|
11,5 x 11,5 cm Massivholzpfosten
Kesseldruckimprägniert
|
|
Einfahrtsbögen
|
11,5 × 11,5 cm Leimholz
Kesseldruckimprägniert
|
|
Pfostenankerbedarf
|
6
Bitte beachten Sie: Pro Rundbogen wird 1 Pfostenanker zusätzlich benötigt
|
|
Dachrinnenbedarf
|
Kunststoff Dachrinnenset mit Fallrohren
|
Optionale Erweiterungen
- H-Pfostenanker (12 x 12 x 80 cm)
- Front mit Doppeltür
- Geräteraum 1 + 2
- Rückwand
- Seitenwand
- Fenster 19 mm
- Dachrinne
Im Lieferumfang enthalten:
- 11,5 x 11,5 cm starke Massivholzpfosten
- 0,8 mm starke PVC-Platten mit Trapezprofil, grau
oder
0,5 mm starke Stahlplatten mit Trapezprofil, oben rot, unten grau
- Glattkantbretter aus Massivholz
- Einfahrtsbögen gemäß Auswahl
- Montagematerial
- Ausführliche und leicht verständliche Aufbauanleitung
· Dieses Carport basiert auf der bewährten Systembauweise.
Diese ermöglicht Ihnen einen schnellen und einfachen Aufbau.
Walmdachcarports
· Die 11,5 x 11,5 cm starken Pfosten dieser Carports sind aus chromfreiem,
kesseldruckimprägniertem Massivholz und bilden so in Verbindung mit
geraden Kopfbändern die stabile Grundkonstruktion.
Die zur Befestigung notwendigen H-Pfostenanker sind nicht im Lieferumfang enthalten.
Sie finden passende H-Pfostenanker beim Zubehör.
Zwei Dachvarianten zur Auswahl:
· 1. Das Dach der Walmdachcarpots besteht aus stabilen 0,8 mm starken,
grauen PVC-Trapezplatten inkl. 19 mm starker Walmdachblende aus zwei Glattkantbrettern.
oder
2. einer stabilen, 0,5mm starken, verzinkten und pulverbeschichteten Stahlplatte im
Trapezprofil inkl. 19 mm starker Walmdachblende aus zwei Glattkantbrettern.
· Schneelasten Walmdachcarport:
1. PVC-Trapezplatte: 75 kg pro m²
2. Stahl-Trapezplatte: 125 kg pro m²
· Auswahl Rundbögen
Sie haben die Wahl. Wir bieten Ihnen dieses Carport in 3 verschiedenen Ausführungen an.
Sie erhalten den Carport mit 2 Rundbögen oder alternativ dazu nur mit einem Rundbogen
oder gänzlich ohne Rundbogen. Die Rundbögen bestehen aus
kesseldruckimprägniertem, verleimtem Kiefernholz.
Sie sind optisch sehr attraktiv und verleihen Ihrem neuen Carport einen besonderen Reiz.
Außerdem verringert sich der Einfahrtsradius und das Ein- und Ausparken wird erheblich erleichtert.
Bitte beachten Sie, dass pro Bogen ebenfalls ein H-Pfostenanker benötigt wird,
die Anzahl der benötigten H-Pfostenanker wird daher nicht verringert.